Appartamento in vendita a Selvamaggio
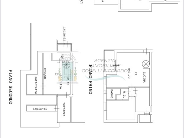
L'agenzia immobilare Gorelli Riccardo vi propone la vendita di un appartamento sito a Colle di Val D'Elsa in zona semi-periferica costituito da n° 3 vani oltre servizio per circa 73mq.
L'immobile è ubicato al primo piano di piccola palazzina, ed è composto da: ampia cucina abitabile con balconcino, disimpegno, 2 camere matrimoniali, 2 bagni con doccia di cui uno dotato di ripostiglio ed ubicato in camera, terrazzo.
Completano la proprietà n° 2 posti auto coperti ed assegnati con ingresso da cancello automatico.
L'immobile è predisposto per pannelli fotovoltaici.
Le informazioni, le misure e le planimetrie sono meramente indicative e non costituiscono in alcun modo elemento contrattuale.
Per motivi di privacy l'indirizzo dell'immobile e il puntatore nella mappa sono anch'essi puramente indicativi e non corrispondono all'esatta ubicazione della proprietà.
Per ulteriori informazioni, visite all'immobile e/o altre proposte immobiliari, non esitate a contattare l'agenzia immobiliare Gorelli Riccardo al n° 3920163461 (anche tramite messaggio what'sapp), o all'indirizzo mail ag.imm.gorelliriccardo@gmail.com, o tramite il sito internet www.gorelliriccardorealestate.com.
Appartamento in Vendita a Campiglia
Colle Di Val D'elsa | Campiglia
€ 289.000
L’agenzia immobiliare Gorelli Riccardo, vi propone su Colle di Val D’Elsa in zona Campiglia, la vendita di un appartamento di nuova costruzione in classe A3, dislocato su due livelli, al primo e ultimo piano. L’immobile si compone al piano d’ingresso di soggiorno/cucina di circa mq.35 con terrazza, camera matrimoniale con bagno in camera, camera singola con terrazzino, secondo servizio. Salendo al piano superiore a cui si accede tramite scala a chiocciola, piano mansardato di circa mq.20 con terrazza a tetto di mq.9. L’immobile ha tutti gli impianti autonomi con riscaldamento a pavimento, fotovoltaico e solare termico. No gas metano. Completa la proprietà Garage interrato di circa mq.27. L’immobile è attualmente abitato con la possibilità di prenderlo arred...
- 78 mq
- 2 Camere
- 2 Bagni
Appartamento in Vendita a Semicentro
Colle Di Val D'elsa | Semicentro
€ 110.000
L' Agenzia Immobiliare Gorelli Riccardo vi propone su Colle di Val D’Elsa, appartamento in zona semicentrale, in vendita di circa 85 mq, dislocato su due livelli, posto al terzo piano di piccolo condominio senza spese condominiali e così composto:Ingresso/disimpegno, ampio soggiorno con angolo cottura, 2 camere matrimoniali, bagno finestrato con doccia;salendo al piano superiore troviamo ampio piano mansardato con caminetto e zona sottotetto uso ripostiglio; Gli impianti sono tutti autonomi con termo a gas metano, dotato anche di stufa a pellet funzionante, con possibilità di prenderla compresa nella vendita.L'immobile si presenta da rivedere, ma comunque abitabile.Per qualsiasi informazione, visita all'immobile e/o altre proposte immobiliari non esitate a contattare l'Ag...
- 85 mq
- 2 Camere
- 1 Bagno
Appartamento in Vendita a Selvamaggio
Colle Di Val D'elsa | Selvamaggio
€ 170.000
L'agenzia immobiliare Gorelli Riccardo vi propone la vendita di un appartamento sito a Colle di Val D'Elsa in zona semi-periferica costituito da n° 2 vani oltre servizio per circa 66 mq. L'immobile ha ingresso indipendente, ubicato al piano terra ed è composto da: ampio ingresso su giardino e resede privato, soggirono con angolo cottura, 1 camera matrimoniale, piccolo disimpegno ed 1 bagno con doccia.Annesso all'immobile troviamo un locale magazzino. Completano la proprietà n° 2 posti auto coperti ed assegnati con accesso da cancello automatico.L'immobile è predisposto per pannelli fotovoltaici Le informazioni, le misure e le planimetrie, sono meramente indicative e non costituiscono in alcun modo elemnto contrattuale. Per motivy di privacy, l'indirizzo e il p...
- 66 mq
- 1 Camera
- 1 Bagno

